- 価格
- 2,230万円
- 種別
- 中古戸建
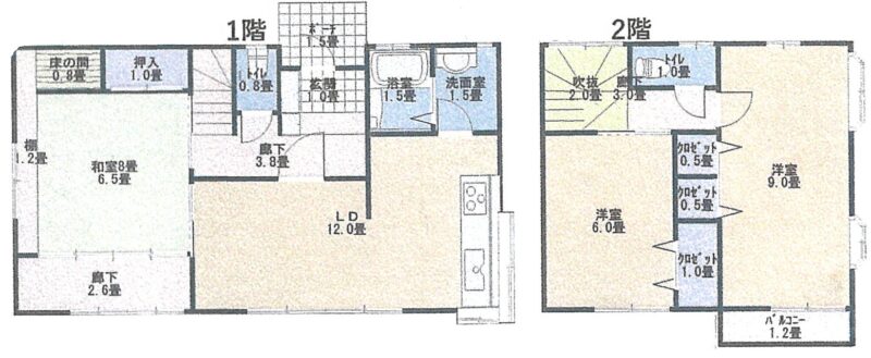
- 間取
- 3LDK
-
- 所在地
- 福島県白河市古高山 古高山売家
- 交通
- JR東北本線
物件詳細
| 築年月 | 1988/03 | 新築/中古 | 中古 |
|---|---|---|---|
| 面積 | 108.83m² | 計測方式 | |
| バルコニー | 向き | ||
| 建物階数 | 地上2階 | 部屋階数 | |
| 建物構造 | 軽量鉄骨 | ||
| 間取内容 | |||
| 駐車場 | 取引態様 | 仲介 | |
| 引渡/入居時期 | 即時 | 現況 | 空家 |
| 地目 | 宅地 | 用途地域 | 第一種低層住居専用 |
| 都市計画 | 非線引き区域 | 地勢 | |
| 土地面積 | 285.22m² | 土地面積計測方式 | 公簿 |
| 建ぺい率 | 50% | 容積率 | 80% |
| 土地権利 | 所有権 | 接道状況 | 一方 |
| 接道方向1 | 北 | 接道間口1 | 6m |
| 接道種別1 | 公道 | 接道幅員1 | |
| 周辺環境 |
みさか小 白2中 |
||
| 設備・条件 | ガスコンロ 三口以上コンロ 給湯 追い焚き 独立洗面台 バス専用 シャワー トイレ専用 バス・トイレ別 温水洗浄便座 エアコン 室内洗濯機置き場 地デジ対応 プロパンガス 公営水道 排水下水 駐車場有 バルコニー | ||
| 物件番号 | |||
| 特記事項 | 2025年9月内外装リフォーム工事済 | ||
Loading...
※物件掲載内容と現況に相違がある場合は現況を優先と致します。
Contact

お電話からのご予約・お問い合わせ
TEL 0248-23-2345
有限会社遠藤商事
営業時間 9:00~19:00
定休日 日曜祝日
免許番号 福島県知事(9)第30077号
WEBからのご予約・お問い合わせ
こちらの物件に関する問い合わせ



















